
O projeto arquitetônico é o primeiro projeto a ser concebido quando se vai construir ou reformar sua casa ou empreendimento. Nele vão estar contidas todas as informações acerca dos desejos do cliente, do ue pode ou não pode ter em seu projeto, além de outros detalhes que possam vir a impactar a concepção do projeto. O projeto arquitetônico abrange várias etapas até a apresentação do projeto executivo final, sendo possível prever nele problemas de execução e facilitar a esma, tornando-se essencial para a garantia de qualidade e segurança na obra.

O projeto estrutural é o dimensionamento e detalhamento da estrutura necessária para sustentar a edificação, composta por vigas, pilares, lajes e fundação. Por meio de critérios e cálculos específicos, e de acordo com as normas vigentes, o engenheiro define qual o tipo de estrutura mais adequado para o projeto, as dimensões e especificações de cada elemento. É considerado o projeto mais importante de uma construção, pois é ele que vai garantir a sustentação da edificação.Além de evitar problemas como trincas, rachaduras, rebaixamento de piso, etc.




Um projeto elétrico residencial é o conjunto de todas as informações, cálculos, desenhos e detalhes referentes à instalação elétrica residencial, observando todas as normas nacionais vigentes. Essas informações podem ser um diagrama elétrico, tabela de dados, layout, desenhos técnicos, listagem dos componentes da instalação e outros. O projeto elétrico se beneficia muito de um projeto arquitetônico bem feito.Além de ser extremamente necessário para proteção dos equipamentos ligados na casa, desde equipamentos mais robustos como ar condicionados, chuveiros elétricos e bombas para piscina, até a equipamentos mais simples como computadores, equipamentos televisivos e smartphones.




Um projeto Hidrossanitário é aquele que engloba toda a distribuição de água fria, água quente, esgoto e água pluvial ao longo da edificação. Ele é essencial para que a água que vem da concessionária chegue até as peças de utilização, como chuveiro, torneiras, etc. Também é fundamental para que os dejetos eliminados pelos ralos e vasos sanitários cheguem até a tubulação de esgoto da rua. Além da correta distribuição dos equipamentos hidrossanitário que levam água da concessionária até os pontos de saída, e levam o esgoto até a coleta municipal, o projeto hidrossanitário é responsável por evitar problemas nesse tipo de instalação, como falta de pressão nos pontos de água fria/ quente, entupimento de esgoto, mal escoamento de água, etc.



.4c03bdf1.jpg&w=1920&q=75)
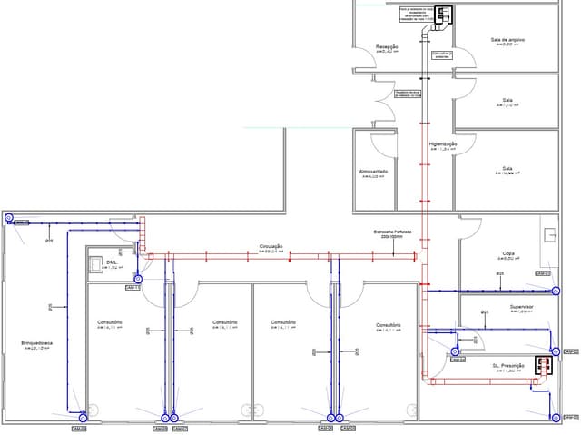
O PPCI (Projeto de Prevenção e Combate a Incêndios) é um documento que sistematiza e detalha os elementos necessários a serem previstos para garantir a segurança dos ocupantes e auxiliar no combate a incêndios. Ele define os espaços e sistemas da edificação para evacuar as pessoas de forma rápida em casos de emergência e iniciar o combate ao fogo em casos de princípios de incêndio. É necessário, pelas normas brasileiras vigentes, em todas as instalações comerciais, industriais, prédios e locais de concentração de público, além dos edifícios residenciais multifamiliares.O não cumprimento das regulamentações estabelecidas pode acarretar multa.




Para que seja realizado o financiamento nas instituições financeiras é necessário o preenchimento de planilhas de orçamento específicas dessas instituições. Essas planilhas são diferentes das planilhas comumente utilizadas na construção civil em obras privadas. A planilha da caixa tem uma série de detalhes que, sem um profissional qualificado, vai haver uma certa dificuldade no aceite pela instituição, ou até mesmo uma reprovação de financiamento. Nós da Esquare temos profissionais experientes neste tipo de serviço e fazemos com o maior zelo possível para que seu financiamento saia o mais rápido possível.


